Bonjour à toutes et à tous,
J’habite une maison au rez-de-chaussée de laquelle se trouve un PDM.
Il a été installé au tout début de cette année, et je dois avouer être un peu déçu du confort qu’il fournit : il fait chaud près du poêle au moment de la flambée, ça persiste un peu le lendemain, mais dès qu’on s’éloigne de plus de 3 mètres du poêle il fait beaucoup plus froid.
Les murs de la maison sont en pierre, d’environ 50cm d’épaisseur et ne sont pas isolés, j’imagine que ça fait partie du problème.
J’envisage des travaux d’isolation par l’extérieur, mais avant de me lancer j’aimerais avoir votre avis sur la pertinence du chantier.
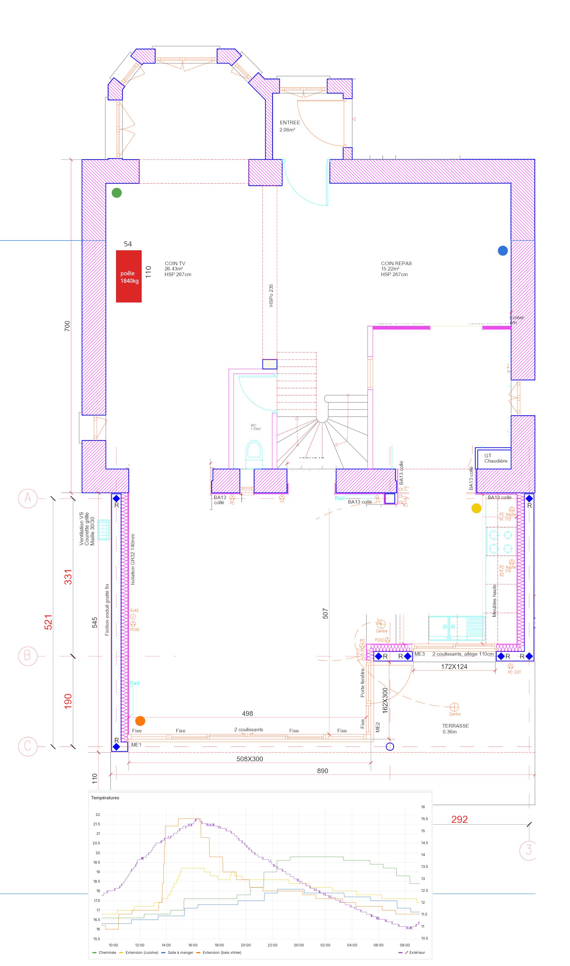
Voici le plan du rez de chaussée (la partie sud avec les murs moins épais a été ajoutée il y a 3 ans et est isolée).
Les points de couleur correspondent aux endroits où sont fait les relevés de température qu’on peut voir en bas de l’image (j’aurais bien fait une image séparée mais comme c’est mon premier post je ne peux en mettre qu’une ^_^).
On voit sur les courbes jaunes et oranges que du côté sud on profite bien de l’ensoleillement entre 14h00 et 16h00.
Vers 20h00 j’ai lancé une flambée dans le poêle, ce qui se ressent bien sur la courbe verte (thermomètre à 1.4 mètres du poêle, qui prend 2 degrés), mais assez peu sur la courbe bleue (thermomètre en face du poêle à environ 8 mètres, et le poêle « voit » le thermomètre). Ça me semble étrange que la courbe bleue ne soit pas plus influencée que ça par la flambée.
Le poêle ne semble pas avoir du tout d’effet sur les thermomètres côté sud.
Je pourrai probablement isoler les façades ouest et est sans trop de problèmes. En revanche je ne pense pas que ça soit possible sur la façade nord avec son bow window et ses 4 vitrages.
Je me demande donc plein de choses :
- Est-ce pertinent d’isoler uniquement les façades ouest et est ? Est-ce que ça pourrait avoir une influence sur la courbe bleue, ou est-ce que tout va être aspiré par le bow window côté nord ?
- L’isolation par l’extérieur est-elle le bon choix ? J’ai vu des mentions de « puits sans fond » dans certaines discussions, qui me font craindre que le mur derrière le poêle continue de « manger » toute la chaleur malgré l’isolation ?
- Ai-je une chance de chauffer le côté sud malgré le fait que le poêle ne « voie » pas cette partie du rez-de-chaussée ?
Quand mon ramoneur me raconte qu’il chauffe 130m² avec le même modèle de poêle, je suis un peu jaloux 





, d’autant que je n’ai aucune idée d’où il sort ce chiffre (à part si comme tu dis il a pris le chiffre du modèle plus lourd).